









PREVENTA HOMU CON AMENIDADES DE LUJO MOD. L CON 1 HAB. EQUIPADOS NOV 2023
Temozón Norte, Mérida, Yucatán
$ 2,580,000 MXN
1
1
83 m 2
Descripción
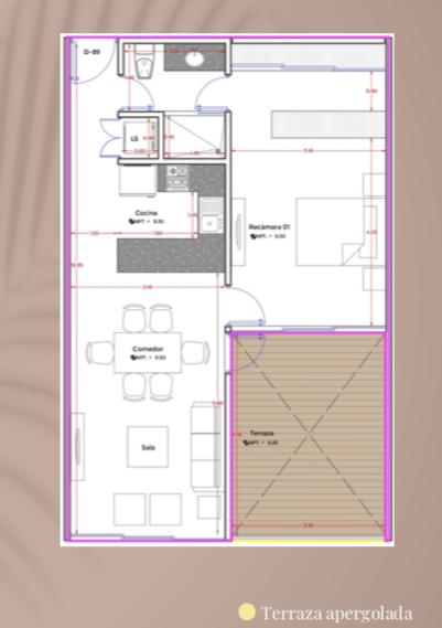
BIENVENIDO A HOMU DEPTOS ZEN LIFESTYLE. Es un desarrollo de 107 departamentos distribuidos en 4 niveles y varios modelos a elegir con arquitectura moderna y vanguardista que se adapta a tu estilo de vida. Esta ubicado en Temozon Norte Merida Yucatan cerca de universidades centros comerciales hospitales y servicios. Es un lugar disenado para ti con diferentes amenidades y areas comunes pensadas en tu comodidad. Homu te ofrece las siguientes amenidades PLANTA BAJA. - Recepcion. - Estacionamiento. - Salon de Eventos. - Piscinas. - Asoleadero. - Area Social - Juice Bar. - Baby Room. PRIMER NIVEL - Gimnasio. - Salon Grill. - Grill. SEGUNDO NIVEL - Coworking. - Bar. TERCER NIVEL - Bodegas. - Area de lavado. - Sala de TV. MODELO L Construccion 83 m2 Entrega Noviembre 2023 Disponibilidad Nivel 3 Distribucion Salacomedor corridos. Cocina abierta con meseta de granito y gavetas incluidas. 1 Recamara principal con bano y closet vestidor Area para lavadora Terraza techada. - CUOTA DE MANTENIMIENTO APROX POR MT2 ESTARA ENTRE 19 A 20 PESOS 1660.00 PESOS. EQUIPAMIENTO POR DEFINIR POLITICAS DE VENTA - Apartado 20000.00 con caracter devolutivo. - Enganche 35 planta baja. - Enganche 25 Niveles 1 2 y 3. FINANCIAMIENTOS - Todos los creditos bancarios. - Recursos propios o contado. Aviso de Privacidad httpswww.brandonrealtor.com.mx. EasyBroker ID EB-TM8018
Ubicación


