



















Casa en VENTA en Residencial Tamara (170)
Chablekal, Mérida, Yucatán
$ 7,880,000 MXN
3
4
260 m 2
350 m 2
Descripción
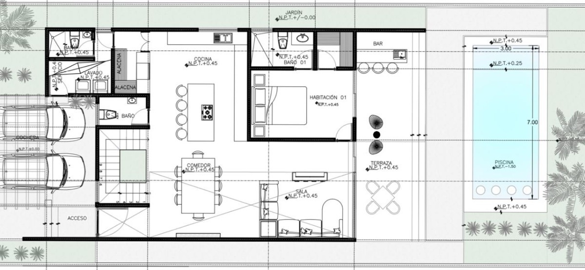
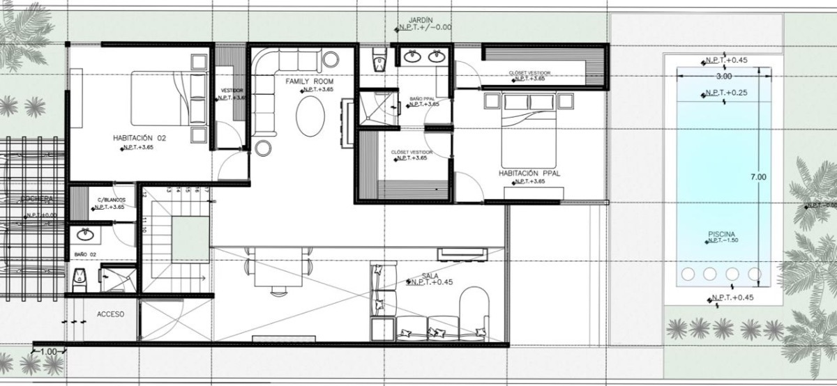
TAMARA es el residencial mas exitoso en ventas de Merida y donde todos quieren vivir o invertir, derivado del gran resultado en su desarrollo. Es una comunidad residencial que plantea el lugar perfecto en el cual construir un estilo de vida armónico, integral y equilibrado en todas sus dimensiones junto con tu familia. Un desarrollo dotado de un urbanismo orgánico, que privilegia la seguridad, la convivencia y el uso cotidiano de amenidades del mas alto nivel para cada etapa de vida. Ubicación privilegiada, en la misma zona del Yucatán Country Club, La Universidad Anáhuac, Madison y a tan solo 20 minutos de la playa. DETALLE LOTE 170 Terreno: 348 m2 Construcción: 300 m2 Garaje techado para 2 coches y 1 sin techar PLANTA BAJA Recibidor Sala Comedor Cocina integral con isla Alacena Terraza techada con barra para bar Medio baño Jardín Alberca (7x3) y de profundidad 1.5m Baño completo de servicio y cuarto de lavado Recámara con walking-closet vestido y baño completo PLANTA ALTA Recámara principal con 2 closets vestidor, doble lavabo y baño Recámara con closet vestidor y baño completo Family Room EQUIPAMIENTO Aires acondicionados en recamaras y sala-comedor Ventiladores en recamaras y sala-comedor Cocina con cuarzo totalmente vestida y equipada, cocina con horno, estufa de gas marca TEKA, campana extractora en isla. Habitaciones con Closets-Vestidor Baños con canceles de vidrio templado, espejo, mueble de baño y accesorios Aluminio tipo europeo en cancel principal de jardín Luces LED Pasto en fachada y jardín trasero Sistema de riego Casa impermeabilizada Piscina con detalles de veneciano (o Chukum según gusto del cliente) AMENIDADES Recepción Terraza Salón de usos múltiples Bar Biblioteca Coworking Juice Bar Gimnasio Multitraining Jacuzzi Ludoteca Pista de jogging Cancha de tenis Cancha de pádel Alberca y chapoteadero Canal de nado Áreas verdes PARQUES RECREATIVOS Parques de lectura Aqua parque Parque con gimnasio al aire libre, canchas de fut y pádel Parque de mascotas Parque Zen Parque de recreación y asaderos Green Park CARACTERÍSTICAS Caseta de vigilancia con pluma automática Sistema de circuito cerrado Vigilancia las 24 horas Barda perimetral CONDICIONES DE PAGO Apartado $50,000 Enganche de 30% Cuota de mantenimiento: $2,700.00 aprox. Fecha de entrega: Septiembre 2023 *Precio y disponibilidad sujetos a cambio sin previo aviso* *Imágenes únicamente para fines ilustrativos *Solamente se incluye el equipamiento mencionado en la descripción*. EasyBroker ID: EB-KJ0222
Amenidades
Exterior
Terraza
Jardin
Ubicación


